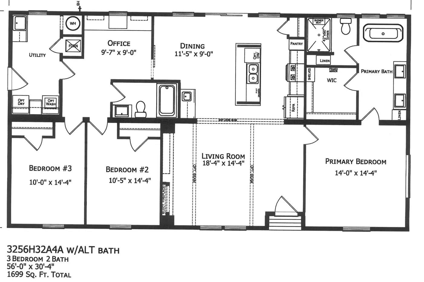
Home Details | Clayton Homes of Hot Springs